Suchen

Das Projekt Gärrest2Humus (G2H)

Installation einer zukunftsweisenden Gärrest-Aufbereitung zur Herstellung hochwertiger Bodensubstrate und Dünger. Ein kommunales Klimaschutz-Modellprojekt der nationalen Klimaschutzinitiative des BMUB

Gärrest2Humus (G2H) beschreibt ein vom Bundesministerium für Umwelt, Naturschutz, Bau und Reaktorsicherheit (BMUB) gefördertes Projekt der GGV zur Herstellung hochwertiger Bodensubstrate in Anlehnung an die legendäre Terra Preta do Indio aus dem Amazonasgebiet. 

Terra Preta (portugiesisch „Schwarze Erde“) bezeichnet einen fruchtbaren, tiefschwarzen Boden im Amazonasgebiet. Forscher haben ihn in den 1960er Jahren entdeckt und herausgefunden, dass diese Bodenart durch Menschen erzeugt wurde. Dazu reicherten die Bewohner den vorhandenen Boden mit einem kompostierten oder fermentierten Gemisch an, das aus Pflanzenresten, Abfällen sowie biologisch aktivierter Kohle bestand.

Diese Erde ist besonders fruchtbar und ermöglicht außerordentliche Erträge. Und das ohne den großflächigen Einsatz chemisch-synthetischer Dünger und Pflanzenschutzmittel.

Wie kann man Terra Preta heute herstellen?

Fachleute sind sich einig: Neue geschaffene Terra Preta könnte die Erträge landwirtschaftlich unproduktiver Böden steigern. Aber was ist das Besondere
daran? Neuere wissenschaftliche Untersuchungen gehen davon aus, dass biologisch aktivierte Kohle die entscheidende Zutat für die extrem langfristige
Düngewirkung ist. Sie wirkt wie ein Speicher und verhindert, dass organische Nährstoffe durch Regen oder Gießwasser aus dem Boden ausgewaschen
werden.

Die zur Erzeugung der Kohle notwendige Biomasse müsste aus Ernterückständen oder Plantagen gewonnen werden, schon weil die Nutzung primärer
Quellen wie z.B. Hochmoore zur Torfgewinnung unerwünscht ist. Denn der Torfabbau zerstört die jahrhundert- bis jahrtausendalten Moore und mit ihnen
den Lebensraum für viele Pflanzen und Tiere. Auch für das Klima ist der Torfabbau schlecht: Durch die Entwässerung der Feuchtgebiete entweicht CO2 in
großen Mengen, außerdem entfällt ein wertvoller Speicher für das Treibhausgas. Für Ersatzprodukte besteht also ein großer und dringender Bedarf.

Was genau ist das G2H-Projekt der GGV?

In Kooperation mit dem Partner Palaterra® als Technologielieferant wird die GGV erstmals und als Teil des Zukunftsprojektes „Food & Energy Campus”
auf dem Gelände der Biogasanlage in Wallerstädten eine Anlage errichten, mit der in großtechnischem Maßstab durch Aufbereitung der Gärreste aus der
Biogasanlage humusfördernde, nährstoffreiche Bodenverbesserer und Torfersatzsubstrate hergestellt werden. Dieses Projekt läuft unter der Bezeichnung
Gärreste2Humus (G2H).

Mit ihrer Konzeption hat die GGV unter 200 Bewerbern den Zuschlag für eine Förderung durch das BMUB erhalten. Damit gehört G2H der GGV zu den zukunftsweisenden kommunalen Klimaschutz-Modellprojekten der nationalen Klimaschutzinitiative.

Was wird in der neuen Anlage hergestellt?

Mit dem Projekt G2H ist erstmalig geplant, Komponenten wie die Gärreste einer Biogasanlage (Nawaro), Pferdemist und Pflanzenkohle zu einem neuartigen Torfersatzprodukt zu entwickeln. Das Endprodukt soll eine Eignung für den Sonderkulturen- und Profigartenbau haben. Es kann mit einem großen Anteil in gärtnerische Erden und Kultursubstrate eingemischt werden. Die Vorteile solchermaßen aufbereiteter Erden sind:

  • Hohe Wasserspeicherfähigkeit und gute Durchlüftung des Bodens
  • Optimale Nährstoffverfügbarkeit für die Pflanzen
  • Aktivierung und Intensivierung des Bodenlebens
  • Stärkung der Widerstandsfähigkeit gegen Schaderreger
  • Kräftiges Pflanzenwachstum und gute Blütenbildung
  • Reduzierter Nachdüngungsbedarf

Den Aufbau der Anlage zeigt in vereinfachter Weise das nachfolgende Diagramm:

Diagramm

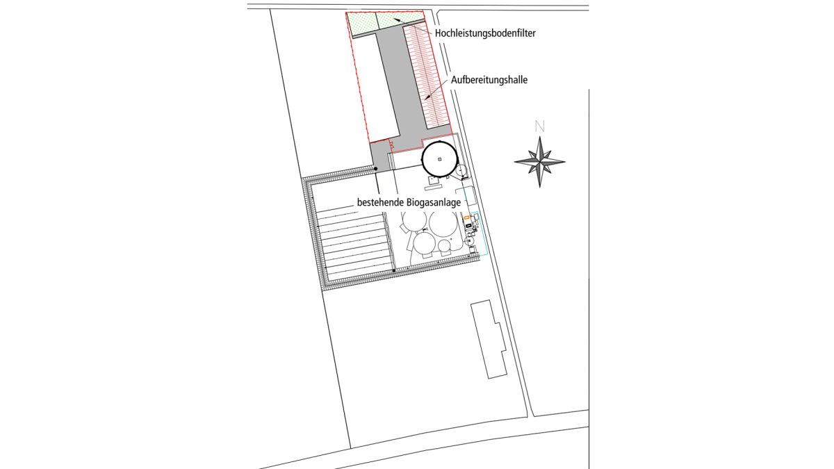
Wo wird die neue Anlage gebaut und welche Vorteile sind damit verbunden?

Die neue G2H-Anlage der GGV entsteht auf einem Gelände neben der Biogasanlage Wallerstädten. Vorteile sind neben einer ökologisch-ganzheitlichen Ressourcenbewirtschaftung auf lokaler Ebene mit regionaler, nationaler und internationaler Ausstrahlkraft auch die verkehrs- und klimatechnischen Verbesserungen, die sich durch der Wegfall der bisherigen zahlreichen Gärrest-Transporte ergeben.

Das über den organischen Sorptionsfilter (OSF) anfallende, mit Pflanzennährstoffen angereicherte Filtersubstrat, wird als humusfördernder Bodenverbesserer und organischer Dünger an die Landwirtschaft abgegeben, die auch die Substrate für den Betrieb der Biogasanlage liefert. Die GGV leistet damit einen weiteren Beitrag zur Etablierung geschlossener Energie-, Wasser- und Sekundär-Rohstoffkreisläufe sowie neuer Landnutzungsmodelle in der Region Groß-Gerau.

OSF


Weitere Informationen

Ansprechpartner GGV:
Arno Hochstätter
Stadtwerke Groß-Gerau Versorgungs GmbH
Darmstädter Straße 53
64521 Groß-Gerau
Telefon (0 61 52) 17 20-0
Telefax (0 61 52) 17 20-20
hchstttrggv-nrgd

Kooperationspartner:
Palaterra Betriebs- und Beteiligungsgesellschaft mbH
www.palaterra.eu

Medien:
https://swrmediathek.de/player.htm?show=44d50152-4aac-11e7-9fa5-005056a12b4c
aus der Sendung „natürlich!” vom 6. Juni 2017


Kontakt

GGV Stadtwerke Groß-Gerau
Versorgungs GmbH

Vertrieb, Netz und Finanzen
Darmstädter Straße 53
64521 Groß-Gerau
Telefon (0 61 52) 17 20-0
E-Mail nrgvrtrbggv-nrgd

Verbrauchsabrechnung
Frankfurter Straße 24
64521 Groß-Gerau
Telefon (0 61 52) 93 15-93

Bereitschaftsdienst
Telefon (0 800) 00 93 150

Ihre Nachricht

 

Kontaktformular

 

* Pflichtfeld